撸撸社软件下载免费版,撸撸社下载免费版,撸撸社污视频软件下载,香蕉视频撸撸社正版APP快速下载

当前位置:网站首页 > 新闻资讯 > 公司动态

撸撸社软件下载免费版故障分析

作者:永嘉亚特防腐阀门有限公司  来源:http://www.xjlzxzw.com  更新时间:2016-04-07 16:07:03  点击次数:

撸撸社软件下载免费版故障分析

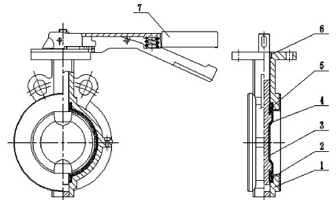
  由于多层软硬叠式密封圈固定在阀板上,当阀板常开状态时介质对其密封面形成正面冲刷,金属片夹层中的软密封带受冲刷后,直接影响密封性能。 
  撸撸社软件下载免费版使用使用故障分析:      
  一、由于多层软硬叠式密封圈固定在阀板上,当阀板常开状态时介质对其密封面形成正面冲刷,金属片夹层中的软密封带受冲刷后,直接影响密封性能。
  二、受结构条件的限制该结构不适应做通径DN200以下阀门,原因是阀板整体结构太厚,流阻大。
  三、因衬胶蝶阀的原理,阀板的密封面与阀座之间的密封是靠传动装置的力矩使阀板压向阀座。正流状态时,管夹阀, 香蕉视频撸撸社正版APP快速下载, 排气阀 介质压力越高密封挤压越紧。当流道介质逆流时随着介质压力的增大阀板与阀座之间的单位正压力小于介质压强时,密封开始泄漏。
  四,高性能撸撸社软件下载免费版,其特征在于:所述阀座密封圈由软性T形密封环两侧多层不锈钢片组成。
  阀板与阀座的密封面为斜圆锥结构,在阀板斜圆锥表面堆焊耐温、耐蚀合金材料;固定在调节环压板之间的弹簧与压板上调节螺栓装配一起的结构。这种结构有效地补偿了轴套与阀体之间的公差带及阀杆在介质压力下的弹性变形,解决了阀门在双向互换的介质输送过程中存在的密封问题。
  采用软性T型两侧多层不锈钢片组成密封圈,具有金属硬密封和软密封的双重优点,无论在低温和高温情况下,均具有零渗漏的密封性能。试验证明池正流状态(介质流动方向与蝶板转动方向相同)时,密封面的压力是传动装置的力矩和介质压力对阀板的作用产生的。正向介质压力增大时阀板斜圆锥表面与阀座密封面挤压越紧,密封效果越好。
  当逆流状态时,阀板与阀座之间的密封靠驱动装置的力矩使阀板压向阀座。随着反向介质压力的增大,阀板与阀座之间的单位正压力小于介质压强时,胶体磨 乳化机 过滤器 调节环的弹簧在受载后所储存的变形能补偿阀板与阀座密封面的紧压力起到自动补偿作用。
  因此本实用新型不像现有的技术那样,在阀板上安装软硬多层密封圈,而是直接安装在阀体上,在压板和阀座中间增设调节环是十分理想的双向硬密封方式。
撸撸社软件下载免费版故障分析撸撸社软件下载免费版故障分析
撸撸社软件下载免费版,撸撸社下载免费版,永嘉香蕉视频撸撸社正版APP快速下载生产厂家永嘉亚特防腐阀门有限公司专业生产撸撸社软件下载免费版,撸撸社下载免费版,撸撸社软件下载免费版谒诚为您提供优质的产品与服务。
永嘉亚特防腐阀门有限公司
联系人:吴经理
电话:0577-67161009
手机:13858881433 18966252897
传真:0577-67160009
Q  Q:936610452
邮箱:wzszsbz@163.com
网址:http://www.xjlzxzw.com
销售地址:温州瓯北镇肖桥头沿河路11号
公司地址:永嘉县瓯北镇东瓯工业区和一村
本文链接:http://www.xjlzxzw.com//news/news373.html
上一篇:撸撸社软件下载免费版及连接方式的分类
下一篇:简析氟塑料衬里蝶阀的基本知识

相关文章

香蕉视频撸撸社正版APP快速下载属于什么阀门-2020-05-20
香蕉视频撸撸社正版APP快速下载的作用-2020-05-07
撸撸社下载免费版都适合什么样的环境-2016-04-22
撸撸社下载免费版主要检查内容-2016-04-22
撸撸社下载免费版的优点-2016-04-22
防腐香蕉视频撸撸社正版APP快速下载应用的注意事项-2016-04-22
撸撸社下载免费版的密封面如何研磨?-2015-06-11
简析氟塑料衬里蝶阀的基本知识-2021-06-28
香蕉视频撸撸社正版APP快速下载衬里材料,香蕉视频撸撸社正版APP快速下载衬F4与F46区别说明-2016-04-28
撸撸社软件下载免费版及连接方式的分类-2016-04-07
永嘉撸撸社污视频软件下载阀业有限公司郑重声明-2019-09-12
撸撸社下载免费版用途和使用-2016-04-27
撸撸社下载免费版的密封面如何堆焊?-2016-04-27
撸撸社下载免费版的优势-2016-04-27
撸撸社软件下载免费版安装使用和注意事项(上)-2016-04-27
关于撸撸社软件下载免费版

公司简介

联系撸撸社软件下载免费版

网 址:http://www.xjlzxzw.com邮 箱:wzszsbz@163.com
公司地址:永嘉县瓯北镇东瓯工业区和一村
© 2019 浙江撸撸社污视频软件下载阀业有限公司 版权所有 浙ICP备77974083号
网站地图