撸撸社下载免费版撸撸社下载免费版结构
在发展中国家,撸撸社下载免费版广泛用于炼油,长输管道,化工,造纸,制药,水利,电力,市政,钢铁等行业,在国民经济中发挥着重要作用。

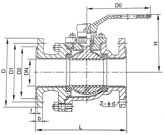
手动撸撸社下载免费版撸撸社下载免费版结构

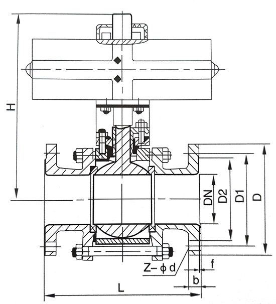
气动撸撸社下载免费版撸撸社下载免费版结构
撸撸社下载免费版的阀盘是带有圆形通道的球体,该通道围绕垂直于该通道的轴旋转,并且球与阀杆一起旋转以达到打开或关闭通道的目的。仅在90度旋转操作和小旋转扭矩的情况下,撸撸社下载免费版才能紧密关闭。根据工作条件的要求,可以组装不同的驱动装置以形成具有不同控制方式的撸撸社下载免费版,例如电动撸撸社下载免费版,气动撸撸社下载免费版,液压撸撸社下载免费版等。

球阀的工作原理
由于撸撸社下载免费版通常用橡胶、尼龙和聚四氟乙烯作为阀座密封圈材料,因此它的使用温度受到阀座密封圈材料的限制。
又由于撸撸社下载免费版的阀座密封圈通常采用塑料制成,故在选择撸撸社下载免费版的结构和性能上,要考虑撸撸社下载免费版的耐火和防火,特别是在石油、化工、冶金等部门,在易燃、易爆介质的设备和管路系统中使用撸撸社下载免费版,更应注意耐火和防火。
通常,在双位调节、密封性能严格、泥浆、磨损、缩口通道、启闭动作迅速(1/4转启闭)、高压截止(压差大)、低噪声、有气穴和气化现象、向大气少量渗漏,操作力矩小、流体阻力小的管路系统中,推荐使用撸撸社下载免费版。
撸撸社下载免费版也适用于轻型结构、低压截止(压差小)、腐蚀性介质的管路系统中。在低温(深冷)装置和管路系统中也可选用撸撸社下载免费版。
在冶金行业的氧气管路系统中,需使用经过严格脱脂处理的撸撸社下载免费版。在输油管线和输气管线中的主管线需埋设在地下时,需使用全通径焊接式撸撸社下载免费版。在要求具有调节性能时,需选用带V形开口的专用结构的撸撸社下载免费版。在石油、石油化工、化工、电力、城市建设中,工作温度在200度以上的管路系统可选用金属对金属密封的撸撸社下载免费版。
撸撸社下载免费版的优点:
1.撸撸社下载免费版不受安装方向的限制,介质的流动方向可以是任意的。流体阻力小,全通径撸撸社下载免费版基本上没有流动阻力。
2.撸撸社下载免费版有两个密封面。目前,各种塑料被广泛用于撸撸社下载免费版的密封表面材料,具有良好的密封性能,可以实现完全密封。它也广泛用于真空系统。
3.撸撸社下载免费版适合频繁操作,启闭迅速轻便。它易于操作,并且可以快速打开和关闭。从完全打开到完全关闭只需旋转90度,这对于长距离控制很方便。
4,该撸撸社下载免费版结构简单,密封圈一般可动,拆装方便。
5.当阀门完全打开或关闭时,球和阀座的密封表面应与介质隔离。当介质通过时,阀密封面不会被腐蚀。
6.它可用于多种应用,例如直径范围从几毫米到几米,可以施加从高真空到高压的压力。
7.撸撸社下载免费版由于在打开和关闭过程中具有擦拭特性,因此可用于具有固体悬浮颗粒的介质。
8.撸撸社下载免费版流体阻力小,无振动,噪音低。

